Вхід на сайт

Ел. пошта:
Пароль:

Реєстрація на сайті

Призвіще: Область:
Ім'я: Населений пункт:
    По батькові: Номер телефону:
    Ел. пошта: Компанія:
      Пароль: Посада:
      Повторіть пароль: Рік початку роботи:
      Фото:
      З правилами розміщення об'єктів погоджуюсь

      Забули пароль?

      Вкажіть ел. пошту — ми надішлемо Вам новий пароль для входу
      Ел. пошта:

      Проблема на сайті

      Закрити
      Ваш e-mail:
      (необов'язково)
      Розкажіть нам, що сталось

      без комісії Ризька, 73-г — Продається офіс

      (г. Киев, Шевченковский район)

      120000 $

      Загальна площа: 85 кв.м

      Кімнат: 3

      Поверх: 1

      К-ть поверхів: 25

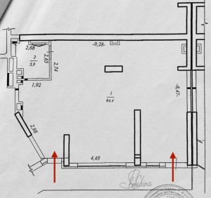
      Продається офісне приміщення за адресою: вул. Ризька, 73Г, Шевченківський район, Київ

      Пропонуємо до вашої уваги нежитлове приміщення у житловому будинку, розташоване на першому поверсі з окремим входом. Ідеальне рішення для офісу, студії, салону краси чи іншого бізнесу, який потребує зручного розташування та можливості індивідуального облаштування.

      Основні характеристики
      • Загальна площа: 85 м²
      • Поверх: 1-й
      • Висота стель: 3 м
      • Вхід: окремий
      • Стан: без оздоблення, під будь-який вид діяльності

      Переваги розташування
      • Зручна транспортна доступність: будинок знаходиться між двома станціями метро — «Сирець» та «Дорогожичі», які розташовані в пішій доступності (10-15 хвилин).
      • Розвинена інфраструктура: поруч магазини, кафе, банки, освітні та медичні заклади.
      • Екологічне оточення: неподалік парки «Дубки», «Нивки» та «Сирецький» забезпечують чисте повітря та можливості для відпочинку.
      • Парковка: є місця для зручного паркування.

      Ціна: 120 000 доларів

      Чому варто купити це приміщення?
      Це простір з потенціалом для розвитку вашого бізнесу завдяки зручному місцю розташування, можливості облаштування «під себе» та конкурентній ціні для цього району.

      Для отримання додаткової інформації та організації перегляду звертайтеся за телефоном.

      Надіслати скаргу

      Закрити
      Поскаржитися на об'єкт «Ризька, 73-г (г. Киев, Шевченковский район)»
      Ваш коментар:(Необов'язково)
      Ваша скарга буде надіслана ріелтору, що розмістив об'єкт, а також адміністрації сайту АФНУ.
      Ваше ім'я:
      (Обов'язково)
      Ваш e-mail для відповіді:
      (Обов'язково)

      Вам также могут подойти

      ул. Межигорская, 13 (г. Киев, Подольский район) - Продається офіс, 135000 $ - АФНУ

      Оновлено: 9 січня

      Розміщено: 14 серпня 2024

      Продається офіс

      5 кімн., площа 108, поверх 3/3

      г. Киев, ул. Межигорская, 13

      135000 $ без комісії

      Рощіна Світлана Миколаївна

      Членкиня Правління КМВ АФНУ (Ассоциация специалистов по недвижимости (риэлторов) Украины) , Членкиня IT-комітету КМВ АФНУ (Ассоциация специалистов по недвижимости (риэлторов) Украины) , Модераторка регіонального відділення КМВ АФНУ (Ассоциация специалистов по недвижимости (риэлторов) Украины) , Голова комітету з навчання та підвищення кваліфікації (Ассоциация специалистов по недвижимости (риэлторов) Украины)

      Продається приміщення в історичному центрі Подолу
      - Адреса: Межигірська, 13
      - Площа: 108 м²
      - Поверх: 3/3, цегляний будинок

      Ідеальне рішення для офісу, студії, творчої майстерні або прибуткового орендного бізнесу!…

      Детальніше

      Коментарі