Вхід на сайт

Ел. пошта:
Пароль:

Реєстрація на сайті

Призвіще: Область:
Ім'я: Населений пункт:
    По батькові: Номер телефону:
    Ел. пошта: Компанія:
      Пароль: Посада:
      Повторіть пароль: Рік початку роботи:
      Фото:
      З правилами розміщення об'єктів погоджуюсь

      Забули пароль?

      Вкажіть ел. пошту — ми надішлемо Вам новий пароль для входу
      Ел. пошта:

      Проблема на сайті

      Закрити
      Ваш e-mail:
      (необов'язково)
      Розкажіть нам, що сталось

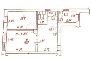
      ул. Ильичевская — Продається квартира

      (г. Кривой Рог, Саксаганский район)

      11000 $

      Загальна площа: 50 кв.м

      Жила площа: 28 кв.м

      Площа кухні: 5 кв.м

      Кімнат: 2

      Поверх: 2

      К-ть поверхів: 2

      Продаж 2-х кімнатної квартири, Саксаганський район, вул.Гетьманська, Дзержинка.

      Про об’єкт:

      - Квартира розташована на 2/2 поверхового будинку.
      - Загальна площа 50,3кв.м.,
      - Житлова 28.2кв.м., всі кімнати окремі,
      - Кухня 5кв.м.,
      - Санвузол окремо,
      - Висота стелі 2.84м.

      Особливості квартири:

      - Простора квартира, двостороння.
      - Частково мебльована.
      - Вікна м/пл., замінені труби м/пл., встановлені лічильники, бойлер, кондиціонер, колонка - автомат.

      Об'єкти поруч:
      - Центр міста
      - Зручне місце розташування
      - Поряд велика кількість магазинів, супермаркет «Varus», кафе, аптека.

      Ціна 11 000$ торг

      За будь-якими питаннями за цією або схожими пропозиціями звертайтесь за номером телефону, де вам відповість наш ріелтор 098 985 09 08.

      З повагою, команда АН Credo

      Надіслати скаргу

      Закрити
      Поскаржитися на об'єкт «ул. Ильичевская (г. Кривой Рог, Саксаганский район)»
      Ваш коментар:(Необов'язково)
      Ваша скарга буде надіслана ріелтору, що розмістив об'єкт, а також адміністрації сайту АФНУ.
      Ваше ім'я:
      (Обов'язково)
      Ваш e-mail для відповіді:
      (Обов'язково)

      Вам также могут подойти

      ул. Рокоссовского (г. Кривой Рог, Саксаганский район) - Продається квартира, 12500 $ - АФНУ

      Оновлено: 17 грудня 2025

      Розміщено: 14 жовтня 2025

      Продається квартира

      2 кімн., площа 44/27/5, поверх 3/3

      г. Кривой Рог, ул. Рокоссовского

      12500 $

      Літвинова Ірина Вікторівна

      Продаж 2-кімнатної квартири — 96 квартал, вул. Рокосовського!
      Пропонуємо простору «сталінку» в цегляному будинку — ідеальний варіант для тих, хто цінує надійність, висоту стель і зручне розташування.

      Про об’єкт:
      Поверх:…

      Детальніше

      ул. Симонова (г. Кривой Рог, Долгинцевский район) - Продається квартира, 9500 $ - АФНУ

      Оновлено: 12 січня

      Розміщено: 17 червня 2025

      Продається квартира

      1 кімн., площа 38/16/9, поверх 7/9

      г. Кривой Рог, ул. Симонова

      9500 $

      Літвинова Ірина Вікторівна

      Продаж 1-но кімнатної квартири, вул. 21-Ї бригади Національної гвардії (Симонова), Східний-1.

      Про об’єкт:

      - Квартира розташована на 7/9 поверхового будинку, двостороння.
      - Загальна площа 38,45кв.м.,
      - Житлова 16.6кв.м.,
      - Кухня…

      Детальніше

      ул. Тухачевского (г. Кривой Рог, Жовтневый район) - Продається квартира, 9900 $ - АФНУ

      Оновлено: 8 грудня 2025

      Розміщено: 12 серпня 2025

      Продається квартира

      1 кімн., площа 31/17/6, поверх 5/5

      г. Кривой Рог, ул. Тухачевского

      9900 $

      Літвинова Ірина Вікторівна

      Продаж 1-х кімнатної квартири, Покровський район, вул Е.Фукса (Тухачевского).

      Про об’єкт:

      - Квартира розташована на 5/5 поверхового будинку, дах після капітального ремонту.
      - Загальна площа 31,53кв.м.,
      - Житлова 17.3кв.м.,
      -…

      Детальніше

      Коментарі