Вхід на сайт

Ел. пошта:
Пароль:

Реєстрація на сайті

Призвіще: Область:
Ім'я: Населений пункт:
    По батькові: Номер телефону:
    Ел. пошта: Компанія:
      Пароль: Посада:
      Повторіть пароль: Рік початку роботи:
      Фото:
      З правилами розміщення об'єктів погоджуюсь

      Забули пароль?

      Вкажіть ел. пошту — ми надішлемо Вам новий пароль для входу
      Ел. пошта:

      Проблема на сайті

      Закрити
      Ваш e-mail:
      (необов'язково)
      Розкажіть нам, що сталось

      пр. Карла Маркса — Здається офіс

      (г. Кривой Рог, Центрально-Городской район)

      15000 грн.

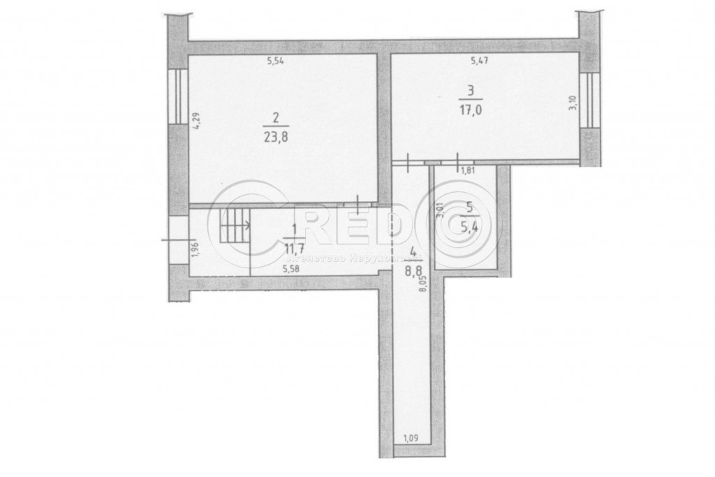
      Загальна площа: 67 кв.м

      Кімнат: 2

      Поверх: 1

      К-ть поверхів: 5

      Оренду приміщення по пр. Поштовий.

      Про об'єкт:
      - Центрально-Міський район
      - пр.Поштоаий
      - загальна площа - 67,9кв.м.

      Особливості:
      - підійде під офіс
      - медичний кабінет
      - прглядаеться з проїздної частини
      - місце для реклами
      - парковка.

      Комунікації:
      - опалення центральне, встановлений лічильник на тепло
      - водопостачання та стоки центральні
      - пожежна, охоронна сигналізації

      Додаткові платежі:
      - світло-лічильник
      - вода-лічильник
      - опалення-лічильник
      - пожежна, охоронна сигналізація

      Локація:
      Хороша транспортна та пішохідна доступність. Поруч зупинки громадського транспорту, комерційні та учбові приміщення.

      Оренда 15 000 грн

      За будь-якими питаннями за цією або схожими пропозиціями звертайтесь за номером телефону 067 696 16 51.
      З повагою, команда Credo!

      Надіслати скаргу

      Закрити
      Поскаржитися на об'єкт «пр. Карла Маркса (г. Кривой Рог, Центрально-Городской район)»
      Ваш коментар:(Необов'язково)
      Ваша скарга буде надіслана ріелтору, що розмістив об'єкт, а також адміністрації сайту АФНУ.
      Ваше ім'я:
      (Обов'язково)
      Ваш e-mail для відповіді:
      (Обов'язково)

      Вам также могут подойти

      ул. Мелешкина (г. Кривой Рог, Саксаганский район) - Здається офіс, 12000 грн. - АФНУ

      Оновлено: 12 грудня 2025

      Розміщено: 17 червня 2016

      Здається офіс

      5 кімн., площа 82, поверх 4/4

      г. Кривой Рог, ул. Мелешкина

      12000 грн.

      Літвинова Ірина Вікторівна

      Пропонується в оренду мебльований офіс по вул. В. Великого, навпроти Рудоуправління без комунальних послуг.

      Про об'єкт:
      - розташований на 4/4пов. житлового будинку
      - заг. пл. 82.1кв.м
      - просторий хол
      -…

      Детальніше

      ул. Тесленко (г. Кривой Рог, Саксаганский район) - Продається офіс, 18500 $ - АФНУ

      Оновлено: 17 грудня 2025

      Розміщено: 6 листопада 2025

      Продається офіс

      площа 121

      г. Кривой Рог, ул. Тесленко

      18500 $

      Літвинова Ірина Вікторівна

      Продаж нежитлового приміщення вул. Тесленка «Артем»
      Вбудоване в цокольний поверх 5-ти поверхового будинку. Кутове.

      Особливості об’єкту:
      - Загальна площа 121.2кв.м.
      - Висота стелі Н- 2.54м.

      Технічні характеристики:
      - Без опалення…

      Детальніше

      мкрн. Сонячний (г. Кривой Рог, Саксаганский район) - Продається офіс, 10000 $ - АФНУ

      Оновлено: 30 грудня 2025

      Розміщено: 20 листопада 2025

      Продається офіс

      3 кімн., площа 31, поверх 1/2

      г. Кривой Рог, мкрн. Сонячний

      10000 $

      Літвинова Ірина Вікторівна

      Продаж приміщення в торгівельному комплексі мкрн. Сонячний.
      Нежитлове приміщення розташоване на першому поверсі двохповерхового торгівельного комплексу з окремим входом та комунікаціями.

      Планування об’єкту :
      - Загальна площа – 31.94кв.м.,
      -…

      Детальніше

      Коментарі