Вхід на сайт

Ел. пошта:
Пароль:

Реєстрація на сайті

Призвіще: Область:
Ім'я: Населений пункт:
    По батькові: Номер телефону:
    Ел. пошта: Компанія:
      Пароль: Посада:
      Повторіть пароль: Рік початку роботи:
      Фото:
      З правилами розміщення об'єктів погоджуюсь

      Забули пароль?

      Вкажіть ел. пошту — ми надішлемо Вам новий пароль для входу
      Ел. пошта:

      Проблема на сайті

      Закрити
      Ваш e-mail:
      (необов'язково)
      Розкажіть нам, що сталось

      пр. Університетський — Здається офіс

      (г. Кривой Рог, Саксаганский район)

      250 грн. за кв.м.

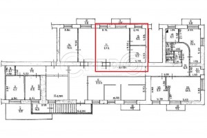
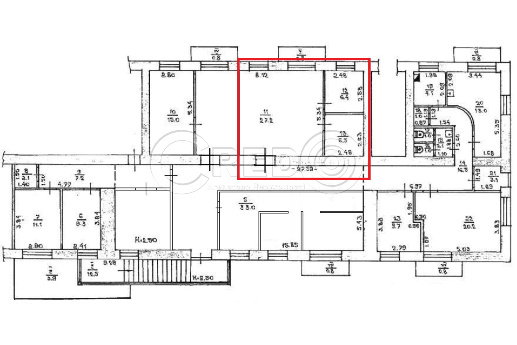
      Загальна площа: 40 кв.м

      Кімнат: 3

      Поверх: 2

      К-ть поверхів: 4

      Оренда офісу, пр. Університетський (Гагаріна), 95 Квартал, 40 м²

      Про приміщення:
      - розташоване на 2-му поверсі
      - загальна площа - 40кв.м
      - вхід з фасадної частини

      Комунікації:
      - електроопалення
      - водопостачання
      - санвузол на поверсі
      - кондиціонер
      - інтернет

      Локація:
      Хороша пропозиція в центрі міста під офіс, б'юті, майстерню, навчальний та масажний кабінети, і ін.
      Високий автомобільний трафік, в зоні пішохідної доступності, поруч вся інфраструктура

      Оренда - 250грн / кв.м.
      Вільне з 01 серпня.

      За будь-якими питаннями за цією або схожими пропозиціями звертайтесь за номером телефону, де вам відповість наш ріелтор 097 541 73 31.

      З повагою, команда Credo!

      Надіслати скаргу

      Закрити
      Поскаржитися на об'єкт «пр. Університетський (г. Кривой Рог, Саксаганский район)»
      Ваш коментар:(Необов'язково)
      Ваша скарга буде надіслана ріелтору, що розмістив об'єкт, а також адміністрації сайту АФНУ.
      Ваше ім'я:
      (Обов'язково)
      Ваш e-mail для відповіді:
      (Обов'язково)

      Вам также могут подойти

      Катеринівська (г. Кривой Рог, Саксаганский район) - Здається офіс, 250 грн. за кв.м. - АФНУ

      Оновлено: 30 липня

      Розміщено: 28 лютого 2024

      Здається офіс

      1 кімн., площа 32, поверх 1/1

      г. Кривой Рог, Катеринівська

      250 грн. за кв.м.

      Літвинова Ірина Вікторівна

      Оренда офісу, в районі "Олімпу"

      Агенція нерухомості CREDO пропонує офісне приміщення в Торговому Комлексі по вул. Катеринівській.

      Про об'єкт:
      Окремий кабінет площею 32,6кв.м.
      Зони загального користування:
      - Хол;
      - Кухня,…

      Детальніше

      ул. 22-го Партсъезда (г. Кривой Рог, Дзержинский район) - Здається офіс, 140 грн. за кв.м. - АФНУ

      Оновлено: 19 серпня

      Розміщено: 20 січня 2023

      Здається офіс

      4 кімн., площа 100, поверх 5/5

      г. Кривой Рог, ул. 22-го Партсъезда

      140 грн. за кв.м.

      Літвинова Ірина Вікторівна

      Оренда офісного приміщення
      - Металургійний район
      - вул. В. Матусевича

      Про об’єкт:
      - приміщення розташоване на 5-му поверсі 5-ти поверхової офісної будівлі
      - біля приміщення парковка

      Планування об’єкту:
      - загальна…

      Детальніше

      Церковна (г. Кривой Рог, Центрально-Городской район) - Здається офіс, 150 грн. за кв.м. - АФНУ

      Оновлено: 5 вересня

      Розміщено: 20 червня 2023

      Здається офіс

      3 кімн., площа 70, поверх 4/4

      г. Кривой Рог, Церковна

      150 грн. за кв.м.

      Літвинова Ірина Вікторівна

      Пропонуємо в оренду офісні приміщення в окремій 4-поверховій адміністративній будівлі з гарним видом на парк

      Про об'єкт:
      - кабінети різною площею від 15кв.м. до 70кв.м.,
      - висота стелі - 3.13м.…

      Детальніше

      Коментарі