Вхід на сайт

Ел. пошта:
Пароль:

Реєстрація на сайті

Призвіще: Область:
Ім'я: Населений пункт:
    По батькові: Номер телефону:
    Ел. пошта: Компанія:
      Пароль: Посада:
      Повторіть пароль: Рік початку роботи:
      Фото:
      З правилами розміщення об'єктів погоджуюсь

      Забули пароль?

      Вкажіть ел. пошту — ми надішлемо Вам новий пароль для входу
      Ел. пошта:

      Проблема на сайті

      Закрити
      Ваш e-mail:
      (необов'язково)
      Розкажіть нам, що сталось

      пер. Пушкіна, 88А — Продається квартира

      (г. Полтава, Киевский район)

      35000 $

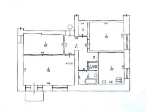
      Загальна площа: 66.3 кв.м

      Жила площа: 41 кв.м

      Площа кухні: 10 кв.м

      Кімнат: 3

      Поверх: 4

      К-ть поверхів: 4

      ПРОДАЖ 3-КІМНАТНОЇ КВАРТИРИ
      Розташування:
      Центральна частина міста, район зупинки ОЦЕВУМ
      район вул. Юліана Матвійчука, 88А

      Характеристики квартири:
      -загальна площа 66,3 м2
      -житлова площа 41 м2
      -кухня 10 м2
      -четвертий поверх
      -балкон
      -не кутова
      -висота стелі 3,05 м

      Комунікації:
      -централізовані
      -гаряча вода - газова колонка
      -лічильники світла, газу, водопостачання

      Вартість: 35 000 доларів США
      БЕЗ КОМІСІЙНИХ АГЕНТСТВА НЕРУХОМОСТІ

      Додаткові відомості:
      Квартира під ремонт. Центральне розташування забезпечує зручне транспортне сполучення та близькість до основних об'єктів міської інфраструктури.
      Для перегляду звертайтеся за контактними даними.

      Надіслати скаргу

      Закрити
      Поскаржитися на об'єкт «пер. Пушкіна, 88А (г. Полтава, Киевский район)»
      Ваш коментар:(Необов'язково)
      Ваша скарга буде надіслана ріелтору, що розмістив об'єкт, а також адміністрації сайту АФНУ.
      Ваше ім'я:
      (Обов'язково)
      Ваш e-mail для відповіді:
      (Обов'язково)

      Вам также могут подойти

      Боровиковського (г. Полтава, Киевский район) - Продається квартира, 35000 $ - АФНУ

      Оновлено: 11 січня

      Розміщено: 12 листопада 2024

      Продається квартира

      1 кімн., площа 43.8/22.9/10.7, поверх 10/11

      г. Полтава, Боровиковського

      35000 $

      Остапченко Александр Степанович

      соучредитель (Агентство недвижимости "Альянс риэлти" Полтава)

      Продаж 1 кімнатної квартири в новобудові на Огнівки по бульвару Боровиковського

      Характеристика квартири:
      - загальна площа 43, 8 м2;
      - житлова площа 22, 9 м2;
      - кухня 10, 7 м2;…

      Детальніше

      ул. Великотырновская, 29 (г. Полтава, Киевский район) - Продається квартира, 39000 $ - АФНУ

      Оновлено: 11 січня

      Розміщено: 27 листопада 2025

      Продається квартира

      2 кімн., площа 44/30/5, поверх 4/5

      г. Полтава, ул. Великотырновская, 29

      39000 $ без комісії

      Остапченко Александр Степанович

      соучредитель (Агентство недвижимости "Альянс риэлти" Полтава)

      ПРОДАЖ 2-КІМНАТНОЇ КВАРТИРИ
      м-н Половки, р-н зупинки “Бібліотека”, вул. Великотирнівська
      Характеристика об’єкта:
      • Загальна площа — 44,6 кв.м
      • Житлова площа — 30,4 кв.м
      • Кухня — 5 кв.м
      •…

      Детальніше

      ул. Леваневского (г. Полтава, Октябрьский район) - Здається квартира, 30000 грн. - АФНУ

      Оновлено: 7 листопада 2025

      Розміщено: 14 лютого 2020

      Здається квартира

      3 кімн., площа 91/54/13, поверх 3/5

      г. Полтава, ул. Леваневского

      30000 грн.

      Остапченко Александр Степанович

      соучредитель (Агентство недвижимости "Альянс риэлти" Полтава)

      з 01 серпня 2024 року

      Сдам в аренду 3 комнатную квартиру в Центре Полтавы в доме клубного типа по ул. Леваневского (р-н Областной больницы, Парка Победы )

      Характеристика квартиры:
      -…

      Детальніше

      Коментарі