Вхід на сайт

Ел. пошта:
Пароль:

Реєстрація на сайті

Призвіще: Область:
Ім'я: Населений пункт:
    По батькові: Номер телефону:
    Ел. пошта: Компанія:
      Пароль: Посада:
      Повторіть пароль: Рік початку роботи:
      Фото:
      З правилами розміщення об'єктів погоджуюсь

      Забули пароль?

      Вкажіть ел. пошту — ми надішлемо Вам новий пароль для входу
      Ел. пошта:

      Проблема на сайті

      Закрити
      Ваш e-mail:
      (необов'язково)
      Розкажіть нам, що сталось

      Янки Купали — Продається будинок

      (г. Кривой Рог, Долгинцевский район)

      12000 $

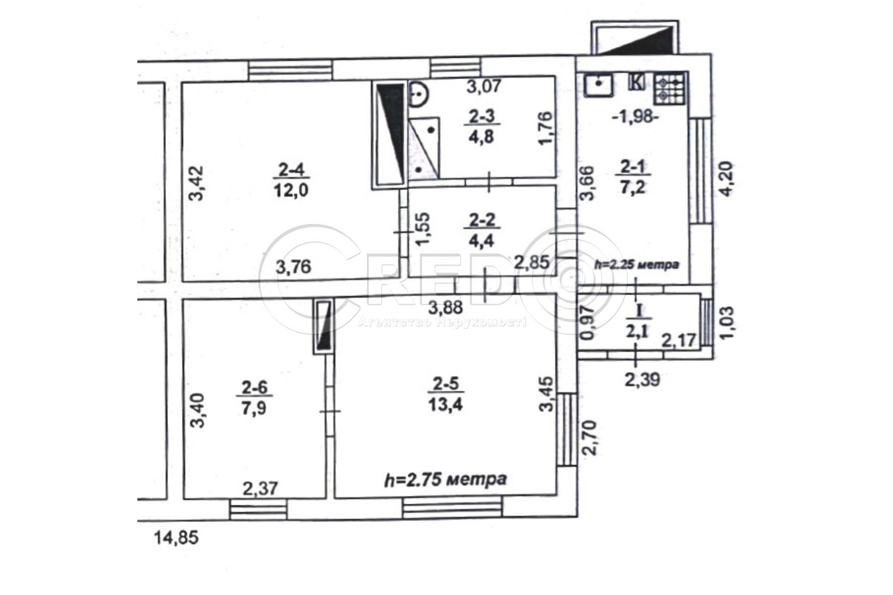
      Загальна площа: 51 кв.м

      Площа ділянки: 7 сот

      Кімнат: 3

      К-ть поверхів: 1

      Продаж 1/2 будинку котеджного типу. Довгинцівський район.
      Пропонуємо до продажу охайне домоволодіння
      по вулиці Янки Купали у Довгинцівському районі.
      Міцний цегляний будинок.
      Акуратна земельна ділянка.
      Гарні сусіди - великий плюс!

      Про об'єкт:
      - 3кімнатна квартира у котеджі.
      - загальна площа 51,8 м.кв.
      - житлова 33,3 м.кв.
      - комплекс господарских споруд.
      - літня кухня з дров'яною плитою.
      - баня та туалет на території.
      - земельна ділянка 7 сот. з молодим садом
      сортових дерев та виноградником.

      Планування об'єкту:
      - 3 кімнати: 13,4 + 12 + 7,9 м.кв.
      - високі стелі 2,75 м.
      - кухня (прохідна) 7,2 м.кв.
      - приміщення під ванну кімнату 4,8 м.кв.

      Комунікації:
      - центральний водогін.
      - каналізація - септик.
      - опалення будинку комбінований газовий котел
      з функцією твердопаливного.
      - на все встановлено лічильники.
      - санвузол поки не в будинку, але є можливість
      швидко обладнати в приміщенні.

      Локація:
      - жвава вулиця Янки Купали має нову назву в.Євгенія Саєнка.
      - вихід до зупинок громадського транспорту на вулицях
      Промислова та Апостолівська.
      - маршрутні таксі № 264,265,269.
      - локаційно поряд Криворізька загальноосвітня школа № 94.
      дошкільний навчальний заклад № 111, відділення НП №10.

      Ціна на сьогодні 12 000 $
      За будь-якими питаннями за цією або схожими пропозиціями звертайтесь за номером телефону, де вам відповість наш ріелтор 067 982 17 19.

      З повагою Credo!

      Надіслати скаргу

      Закрити
      Поскаржитися на об'єкт «Янки Купали (г. Кривой Рог, Долгинцевский район)»
      Ваш коментар:(Необов'язково)
      Ваша скарга буде надіслана ріелтору, що розмістив об'єкт, а також адміністрації сайту АФНУ.
      Ваше ім'я:
      (Обов'язково)
      Ваш e-mail для відповіді:
      (Обов'язково)

      Вам также могут подойти

      Кишинівська (г. Кривой Рог, Долгинцевский район) - Продається будинок, 12000 $ - АФНУ

      Оновлено: 7 жовтня

      Розміщено: 27 червня

      Продається будинок

      г. Кривой Рог, Кишинівська

      12000 $

      Літвинова Ірина Вікторівна

      Пропонуємо до продажу, а також розглянемо обмін на квартиру
      будинок у Довгинцівському районі, селище Залізничне, вул.Кишинівська.

      Пр об'єкт:
      - шлаколитий будинок.
      - загальна площа 49,3 м.кв.
      - житлова площа 28.0…

      Детальніше

      Кишинівська (г. Кривой Рог, Долгинцевский район) - Продається будинок, 12000 $ - АФНУ

      Оновлено: 7 жовтня

      Розміщено: 27 червня

      Продається будинок

      г. Кривой Рог, Кишинівська

      12000 $

      Літвинова Ірина Вікторівна

      Пропонуємо до продажу, а також розглянемо обмін на квартиру
      будинок у Довгинцівському районі, селище Залізничне, вул.Кишинівська.

      Пр об'єкт:
      - шлаколитий будинок.
      - загальна площа 49,3 м.кв.
      - житлова площа 28.0…

      Детальніше

      Коментарі