Вхід на сайт

Ел. пошта:
Пароль:

Реєстрація на сайті

Призвіще: Область:
Ім'я: Населений пункт:
    По батькові: Номер телефону:
    Ел. пошта: Компанія:
      Пароль: Посада:
      Повторіть пароль: Рік початку роботи:
      Фото:
      З правилами розміщення об'єктів погоджуюсь

      Забули пароль?

      Вкажіть ел. пошту — ми надішлемо Вам новий пароль для входу
      Ел. пошта:

      Проблема на сайті

      Закрити
      Ваш e-mail:
      (необов'язково)
      Розкажіть нам, що сталось

      ул. Гагарина, 1 — Здається заклад громадського харчування

      (г. Полтава, Октябрьский район)

      42441 грн.

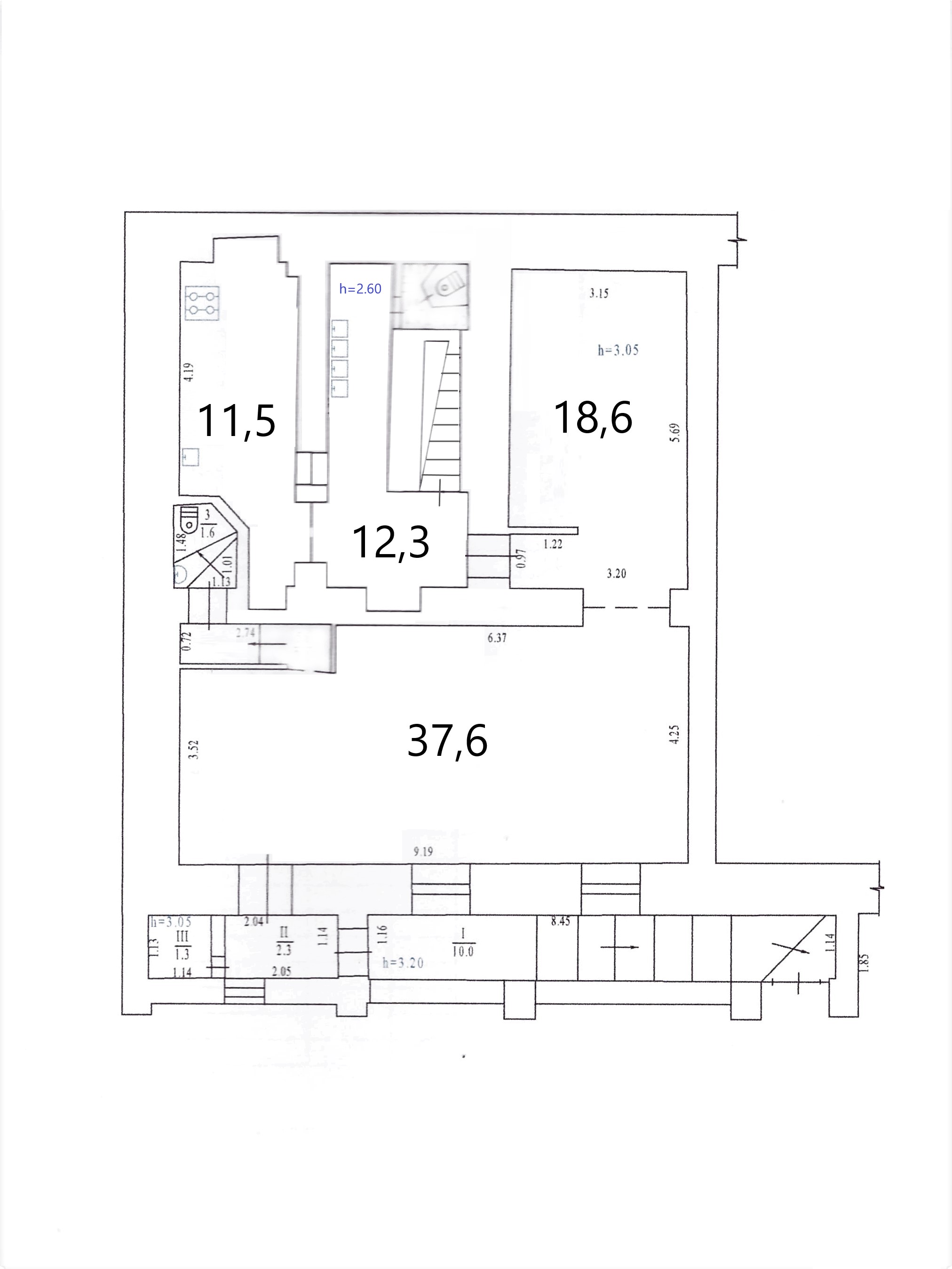
      Загальна площа: 98 кв.м

      К-ть поверхів: 4

      Сдам в аренду помещение таверны "Ривенделл" в Центре площадью 98,7 м.кв на Красной Линии.

      Характеристики помещения:
      - два зала - 37,6 и 18,6 м.кв;
      - общая площадь- 98,7 м.кв;
      - фасадная часть здания;
      - высота помещения Н= 3,05 м.;
      - коммуникации- централизованные;
      - пожарная и охранная сигнализации;
      - система вентиляции и кондиционирования воздуха;
      - ремонт;
      Предыдущее применение: ресторан.

      Возможное применение: магазин, ресторан, объект сферы услуг.

      Высокие пешеходные и транспортные потоки.

      Стоимость аренды: по 430 грн/м2 + коммунальные платежи
      Дополнительно оплачиваются услуги АН Альянс Риэлти

      Надіслати скаргу

      Закрити
      Поскаржитися на об'єкт «ул. Гагарина, 1 (г. Полтава, Октябрьский район)»
      Ваш коментар:(Необов'язково)
      Ваша скарга буде надіслана ріелтору, що розмістив об'єкт, а також адміністрації сайту АФНУ.
      Ваше ім'я:
      (Обов'язково)
      Ваш e-mail для відповіді:
      (Обов'язково)

      Вам также могут подойти

      Европейская ул., 24/42 (г. Полтава, Октябрьский район) - Здається заклад громадського харчування, 40000 грн. - АФНУ

      Оновлено: 25 лютого

      Розміщено: 4 листопада 2021

      Здається заклад громадського харчування

      г. Полтава, Европейская ул., 24/42

      40000 грн.

      Остапченко Александр Степанович

      соучредитель (Агентство недвижимости "Альянс риэлти" Полтава)

      Сдам в аренду помещение кафе в Центре (р-н остановки Шевченко) по ул. Европейской, 24/42, общей площадью 63,4 м2 на Красной Линии.
      Характеристики помещения:
      - 1 этаж общей площадью 63,4 м2;…

      Детальніше

      Европейская ул., 24/42 (г. Полтава, Октябрьский район) - Здається заклад громадського харчування, 40000 грн. - АФНУ

      Оновлено: 25 лютого

      Розміщено: 4 листопада 2021

      Здається заклад громадського харчування

      г. Полтава, Европейская ул., 24/42

      40000 грн.

      Остапченко Александр Степанович

      соучредитель (Агентство недвижимости "Альянс риэлти" Полтава)

      Сдам в аренду помещение кафе в Центре (р-н остановки Шевченко) по ул. Европейской, 24/42, общей площадью 63,4 м2 на Красной Линии.
      Характеристики помещения:
      - 1 этаж общей площадью 63,4 м2;…

      Детальніше

      Коментарі