Вхід на сайт

Ел. пошта:
Пароль:

Реєстрація на сайті

Призвіще: Область:
Ім'я: Населений пункт:
    По батькові: Номер телефону:
    Ел. пошта: Компанія:
      Пароль: Посада:
      Повторіть пароль: Рік початку роботи:
      Фото:
      З правилами розміщення об'єктів погоджуюсь

      Забули пароль?

      Вкажіть ел. пошту — ми надішлемо Вам новий пароль для входу
      Ел. пошта:

      Проблема на сайті

      Закрити
      Ваш e-mail:
      (необов'язково)
      Розкажіть нам, що сталось

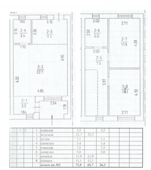
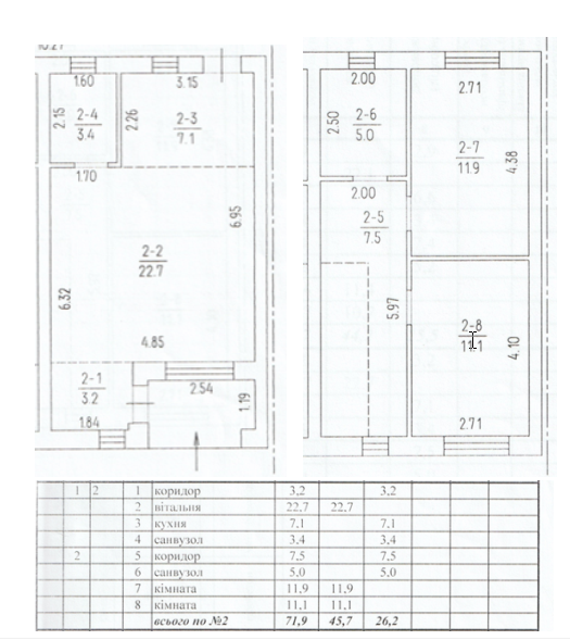
      ул. Подолинского, 44/2 — Продається таунхаус

      (г. Черкассы, Приднепровский район)

      42000 $

      Загальна площа: 72 кв.м

      Кімнат: 3

      К-ть поверхів: 2

      Продається таунхаус в районі школи 13, вул. Подолинського/ Гетьмана Сагайдачного.
      Загальна площа об’єкту 72 м2. Два поверхи + відкрита стоянка на три авто + внутрішній двір 80 м2.
      Зданий в експлуатацію. Стан: після будівельників. Стіни газоблок 400 мм з утепленням. Підведені комунікаціі: вода, каналізація, електрика. Земля 0,0125 га, приватизована.
      В наявності один таунхаус з чотирьох. Встигныть!
      Поруч зупинка, продуктові магазини, аптека, садочки, школа.

      Грамм Ліна

      Грамм Ліна Олександрівна

      Агент з продажу житлової нерухомості (АН "Соната")

      +380 (63) 610-68... Показати номер телефона +380 (63) 610-68-13, +380 (97) 759-31-13, +380 (63) 610-68-13

      Поскаржитися на об'єкт

      Надіслати скаргу

      Закрити
      Поскаржитися на об'єкт «ул. Подолинского, 44/2 (г. Черкассы, Приднепровский район)»
      Ваш коментар:(Необов'язково)
      Ваша скарга буде надіслана ріелтору, що розмістив об'єкт, а також адміністрації сайту АФНУ.
      Ваше ім'я:
      (Обов'язково)
      Ваш e-mail для відповіді:
      (Обов'язково)

      Коментарі