Вхід на сайт

Ел. пошта:
Пароль:

Реєстрація на сайті

Призвіще: Область:
Ім'я: Населений пункт:
    По батькові: Номер телефону:
    Ел. пошта: Компанія:
      Пароль: Посада:
      Повторіть пароль: Рік початку роботи:
      Фото:
      З правилами розміщення об'єктів погоджуюсь

      Забули пароль?

      Вкажіть ел. пошту — ми надішлемо Вам новий пароль для входу
      Ел. пошта:

      Проблема на сайті

      Закрити
      Ваш e-mail:
      (необов'язково)
      Розкажіть нам, що сталось

      без комісії Ясська, 3б — Продається офіс

      (г. Черновцы, Первомайский район)

      1900000 $

      Загальна площа: 2608 кв.м

      К-ть поверхів: 3

      Продам 3-поверхову окремо стоячу будівлю в Першотравневому районі, Проспект, біля Toloka Center.

      Код обєкту - SC-175-528

      Зручне розташування, зручна транспортна розв'язка. Район, наближений до Центру міста.
      Поряд торговельний центр Toloka Center.

      Чернівці - розвинуте місто, та яке активно будується. Поряд чотири термінали перетину кордону з Румунією. За 70 км - міжнародний аеропорт "Сучава".

      Будівля адміністративна, колишній адміністративний корпус кондитерської фабрики.
      Будівництво 1986 року.

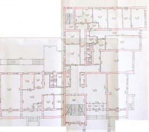
      Загальна площа - 2 608,3 кв.м:
      - півпідвал - 296,6 кв.м
      - 1-й поверх - 658,9 кв.м
      - 2-й поверх - 763,9 кв.м
      - 3-й поверх - 701,5 кв.м
      - мансарда - 187,4 кв.м.

      План та експлікація додається.

      Комунікації: вода, каналізація - ценральні, електропостачання - 100 кВт, газ проходить поряд.

      Земельна ділянка - 21 сотка. Приватна власність.
      Кадастровий номер - 7310136600:08:003:0130

      Свій в'їзд, паркування, просторий двір.
      Є гаражні бокси.

      Вартість - $1 900 тис.

      Надіслати скаргу

      Закрити
      Поскаржитися на об'єкт «Ясська, 3б (г. Черновцы, Первомайский район)»
      Ваш коментар:(Необов'язково)
      Ваша скарга буде надіслана ріелтору, що розмістив об'єкт, а також адміністрації сайту АФНУ.
      Ваше ім'я:
      (Обов'язково)
      Ваш e-mail для відповіді:
      (Обов'язково)

      Коментарі