Вхід на сайт

Ел. пошта:
Пароль:

Реєстрація на сайті

Призвіще: Область:
Ім'я: Населений пункт:
    По батькові: Номер телефону:
    Ел. пошта: Компанія:
      Пароль: Посада:
      Повторіть пароль: Рік початку роботи:
      Фото:
      З правилами розміщення об'єктів погоджуюсь

      Забули пароль?

      Вкажіть ел. пошту — ми надішлемо Вам новий пароль для входу
      Ел. пошта:

      Проблема на сайті

      Закрити
      Ваш e-mail:
      (необов'язково)
      Розкажіть нам, що сталось

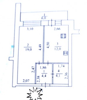
      Веретенівська, 3/1 — Продається квартира

      (г. Сумы, Ковпаковский район)

      31000 €

      Загальна площа: 39 кв.м

      Жила площа: 19 кв.м

      Площа кухні: 12 кв.м

      Кімнат: 1

      Поверх: 1

      К-ть поверхів: 5

      Продається квартира в красивому місці
      - Закритий двір
      - Теплий,цегляний будинок з товстими стінами
      - Комфортний низький поверх
      - Гарне планування
      - Косметичний ремонт
      - Автономне опалення
      - Простора лоджія
      - Великий,сухий підвал.
      Поряд зупинка,джерело,фруктовий сад і парк.
      Чудовий варіант для тих,хто любить спокій і природу.
      Телефонуйте та записуйтесь на перегляд!

      Надіслати скаргу

      Закрити
      Поскаржитися на об'єкт «Веретенівська, 3/1 (г. Сумы, Ковпаковский район)»
      Ваш коментар:(Необов'язково)
      Ваша скарга буде надіслана ріелтору, що розмістив об'єкт, а також адміністрації сайту АФНУ.
      Ваше ім'я:
      (Обов'язково)
      Ваш e-mail для відповіді:
      (Обов'язково)

      Коментарі